
1, rue Kinnikshaff
L-8838 WAHL
T 00352 / 88 80 08
bureau@bureau-rausch.com
www.bureau-rausch.com
Charles Brack, ingénieur et urbaniste-aménageur
Thibault Agosti, ingénieur diplômé
Jacky Plottes, ingénieur diplômé
Création du bureau en 1979 par Eugène Rausch.
Création de la société sous sa forme s.à.r.l. en 1989.
Déménagement de notre siège social à Heiderscheid
en septembre 2021.
Le Bureau d’études RAUSCH & Associés s.à.r.l fait partie d’un groupe d’ingénierie pluridisciplinaire de 34 personnes.
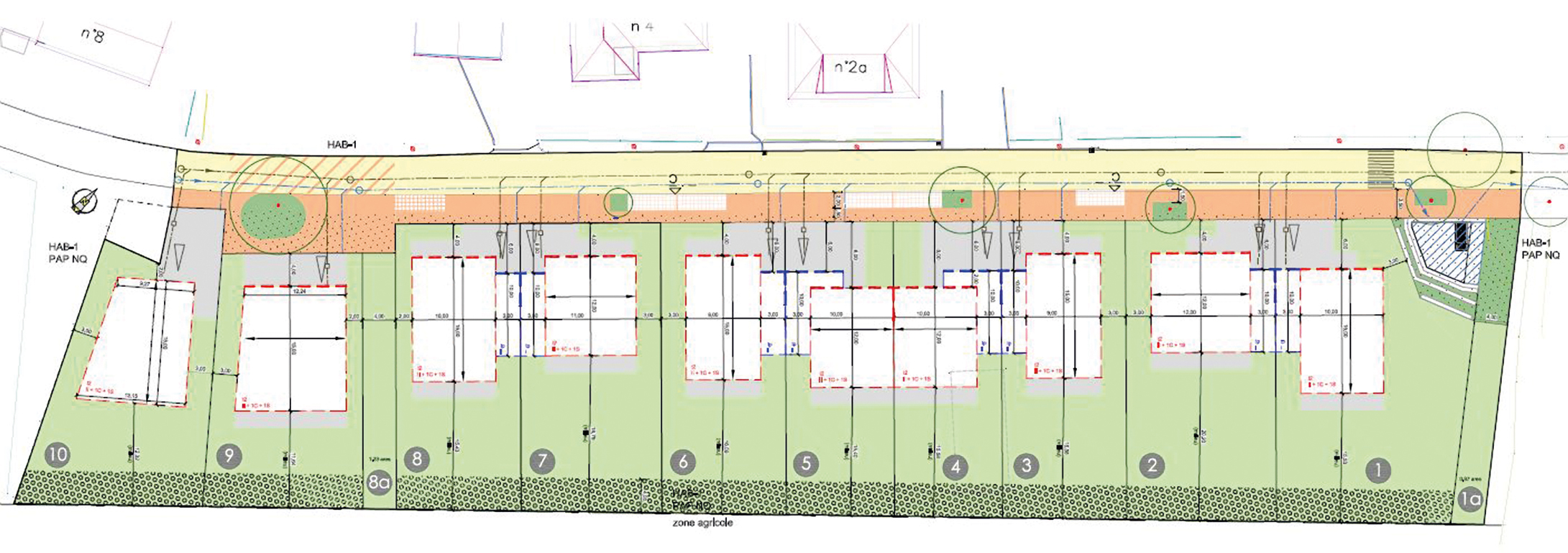
Plan d’Aménagement Particulier (PAP) : Levé topographique, schéma directeur, rapport justificatif, partie écrite, partie graphique, demandes d’autorisations, dossier d’exécution, direction des travaux
Structures / Génie civil / Génie technique / Coordination sécurité / Coordination projets / Topographie (Alpha Topo Luxembourg) / Système d’information géographique GIS / Etudes hydrauliques













